Rif: V007159
VIDIGULFO
PAVIA
DATA ASTA 24/03/2026 ASINCRONA
Vidigulfo Via Brescia 5
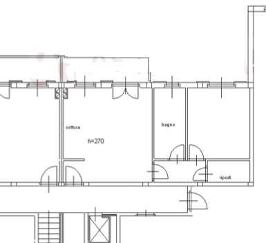
Appartamento posto al piano terreno, con ingresso nel soggiorno con cucina a vista e balcone, disimpegno, bagno, camera da letto e ripostiglio.
Completano la proprietà un vano cantina e un box auto situati al piano S1.
Soluzione ideale per single o coppie, grazie alla distribuzione funzionale degli spazi e alla presenza del balcone. Il piano terra garantisce praticità di accesso, mentre cantina e box auto rappresentano un valore aggiunto in termini di comodità e fruibilità, rendendo l'immobile interessante anche in ottica investimento.
⚠️ MUTUO 100% – DELIBERA PREVENTIVA SCRITTA
SERVIZIO COMPLETO “CHIAVI IN MANO”
Pensiamo a TUTTO NOI:
✔ Individuazione opportunità immobiliari
✔ Analisi documentale e legale completa
✔ Sopralluogo tecnico e stima reale dei costi
✔ Prospetto economico chiaro e verificabile
✔ Presentazione offerta in asta
✔ Assistenza totale post-aggiudicazione
✔ Consegna chiavi e supporto finale
IMMOBILE ALL'ASTA O PIGNORATO? AGISCI ORA.
❌ Rischi di perdere la casa?
❌ Hai un decreto ingiuntivo o pignoramento in corso?
Possiamo aiutarti SUBITO.
Analizziamo la tua situazione e troviamo una soluzione concreta prima che sia troppo tardi.
VENDI CASA A COMMISSIONE ZERO Eu.
Nessun anticipo – Nessuna sorpresa – Massima trasparenza
OPERIAMO SU TUTTA ITALIA
Immobili in asta su tutto il territorio nazionale
Consulenza specializzata ASTE GIUDIZIARIE
⚖️ Annuncio informativo ai sensi dell'art. 490 c.p.c.
CONTATTACI ORA – CONSULENZA IMMEDIATA
Aste Milano Immobiliare – Luigi Taras
388 5849357
☎ 02 23668389
✉ info@astemilanoimmobiliare.it
www.astemilanoimmobiliare.it
Uffici:
Via Teodosio 18 – MM2 Lambrate
Via San Gregorio 6 – MM1 Porta Venezia
Via Roma Rozzano
Vidigulfo Via Brescia 5
Appartamento posto al piano terreno, con ingresso nel soggiorno con cucina a vista e balcone, disimpegno, bagno, camera da letto e ripostiglio.
Completano la proprietà un vano cantina e un box auto situati al piano S1.
Soluzione ideale per single o coppie, grazie alla distribuzione funzionale degli spazi e alla presenza del balcone. Il piano terra garantisce praticità di accesso, mentre cantina e box auto rappresentano un valore aggiunto in termini di comodità e fruibilità, rendendo l'immobile interessante anche in ottica investimento.
⚠️ MUTUO 100% – DELIBERA PREVENTIVA SCRITTA
SERVIZIO COMPLETO “CHIAVI IN MANO”
Pensiamo a TUTTO NOI:
✔ Individuazione opportunità immobiliari
✔ Analisi documentale e legale completa
✔ Sopralluogo tecnico e stima reale dei costi
✔ Prospetto economico chiaro e verificabile
✔ Presentazione offerta in asta
✔ Assistenza totale post-aggiudicazione
✔ Consegna chiavi e supporto finale
IMMOBILE ALL'ASTA O PIGNORATO? AGISCI ORA.
❌ Rischi di perdere la casa?
❌ Hai un decreto ingiuntivo o pignoramento in corso?
Possiamo aiutarti SUBITO.
Analizziamo la tua situazione e troviamo una soluzione concreta prima che sia troppo tardi.
VENDI CASA A COMMISSIONE ZERO Eu.
Nessun anticipo – Nessuna sorpresa – Massima trasparenza
OPERIAMO SU TUTTA ITALIA
Immobili in asta su tutto il territorio nazionale
Consulenza specializzata ASTE GIUDIZIARIE
⚖️ Annuncio informativo ai sensi dell'art. 490 c.p.c.
CONTATTACI ORA – CONSULENZA IMMEDIATA
Aste Milano Immobiliare – Luigi Taras
388 5849357
☎ 02 23668389
✉ info@astemilanoimmobiliare.it
www.astemilanoimmobiliare.it
Uffici:
Via Teodosio 18 – MM2 Lambrate
Via San Gregorio 6 – MM1 Porta Venezia
Via Roma Rozzano








