Rif: V007187
MILANO
MILANO - zona Barona
DATA ASTA 12/03/2026 ASINCRONA
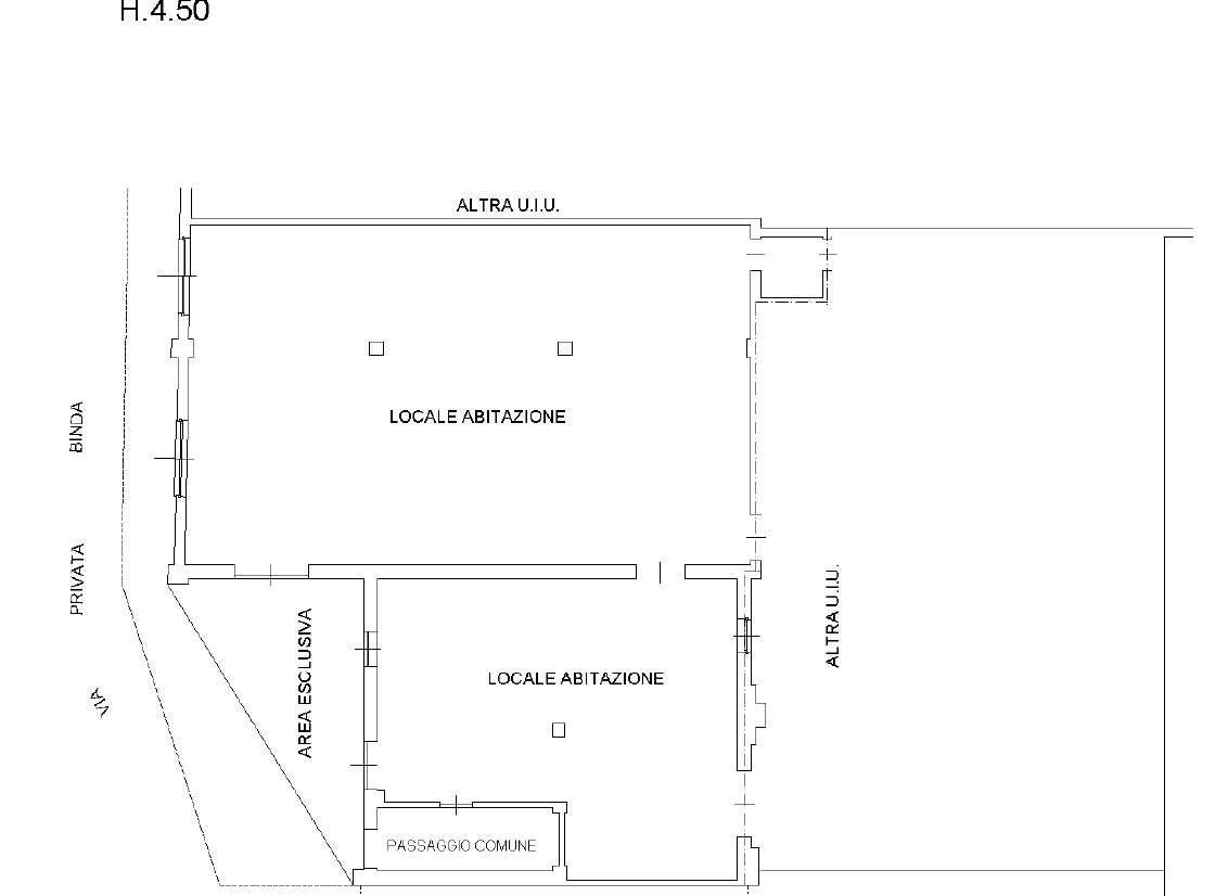
MILANO Via Ambrogio Binda n. 42/A
Porzione di capannone con annesso corpo uffici, composta da due locali principali, oltre a locale retrostante, vano deposito, ripostiglio e servizi igienici.
L'immobile dispone di cortile in uso esclusivo, sul quale insiste servitù di passaggio a favore di terzi.
Sebbene catastalmente censito come abitazione, l'unità non presenta le caratteristiche tipiche di un immobile residenziale per finiture, distribuzione interna e dotazione impiantistica e non risulta conforme ai requisiti igienico-sanitari minimi previsti dalla normativa vigente per l'uso abitativo.
⚠️ MUTUO 100% – DELIBERA PREVENTIVA SCRITTA
SERVIZIO COMPLETO “CHIAVI IN MANO”
Pensiamo a TUTTO NOI:
✔ Individuazione opportunità immobiliari
✔ Analisi documentale e legale completa
✔ Sopralluogo tecnico e stima reale dei costi
✔ Prospetto economico chiaro e verificabile
✔ Presentazione offerta in asta
✔ Assistenza totale post-aggiudicazione
✔ Consegna chiavi e supporto finale
IMMOBILE ALL'ASTA O PIGNORATO? AGISCI ORA.
❌ Rischi di perdere la casa?
❌ Hai un decreto ingiuntivo o pignoramento in corso?
Possiamo aiutarti SUBITO.
Analizziamo la tua situazione e troviamo una soluzione concreta prima che sia troppo tardi.
VENDI CASA A COMMISSIONE ZERO Eu.
Nessun anticipo – Nessuna sorpresa – Massima trasparenza
OPERIAMO SU TUTTA ITALIA
Immobili in asta su tutto il territorio nazionale
Consulenza specializzata ASTE GIUDIZIARIE
⚖️ Annuncio informativo ai sensi dell'art. 490 c.p.c.
CONTATTACI ORA – CONSULENZA IMMEDIATA
Aste Milano Immobiliare – Luigi Taras
388 5849357
☎ 02 23668389
✉ info@astemilanoimmobiliare.it
www.astemilanoimmobiliare.it
Uffici:
Via Teodosio 18 – MM2 Lambrate
Via San Gregorio 6 – MM1 Porta Venezia
Via Roma 56 Rozzano (MI)
MILANO Via Ambrogio Binda n. 42/A
Porzione di capannone con annesso corpo uffici, composta da due locali principali, oltre a locale retrostante, vano deposito, ripostiglio e servizi igienici.
L'immobile dispone di cortile in uso esclusivo, sul quale insiste servitù di passaggio a favore di terzi.
Sebbene catastalmente censito come abitazione, l'unità non presenta le caratteristiche tipiche di un immobile residenziale per finiture, distribuzione interna e dotazione impiantistica e non risulta conforme ai requisiti igienico-sanitari minimi previsti dalla normativa vigente per l'uso abitativo.
⚠️ MUTUO 100% – DELIBERA PREVENTIVA SCRITTA
SERVIZIO COMPLETO “CHIAVI IN MANO”
Pensiamo a TUTTO NOI:
✔ Individuazione opportunità immobiliari
✔ Analisi documentale e legale completa
✔ Sopralluogo tecnico e stima reale dei costi
✔ Prospetto economico chiaro e verificabile
✔ Presentazione offerta in asta
✔ Assistenza totale post-aggiudicazione
✔ Consegna chiavi e supporto finale
IMMOBILE ALL'ASTA O PIGNORATO? AGISCI ORA.
❌ Rischi di perdere la casa?
❌ Hai un decreto ingiuntivo o pignoramento in corso?
Possiamo aiutarti SUBITO.
Analizziamo la tua situazione e troviamo una soluzione concreta prima che sia troppo tardi.
VENDI CASA A COMMISSIONE ZERO Eu.
Nessun anticipo – Nessuna sorpresa – Massima trasparenza
OPERIAMO SU TUTTA ITALIA
Immobili in asta su tutto il territorio nazionale
Consulenza specializzata ASTE GIUDIZIARIE
⚖️ Annuncio informativo ai sensi dell'art. 490 c.p.c.
CONTATTACI ORA – CONSULENZA IMMEDIATA
Aste Milano Immobiliare – Luigi Taras
388 5849357
☎ 02 23668389
✉ info@astemilanoimmobiliare.it
www.astemilanoimmobiliare.it
Uffici:
Via Teodosio 18 – MM2 Lambrate
Via San Gregorio 6 – MM1 Porta Venezia
Via Roma 56 Rozzano (MI)








