Rif: V007176
DAIRAGO
MILANO
DATA ASTA 01/04/2026 MISTA
Dairago Via Luigi Pirandello 11
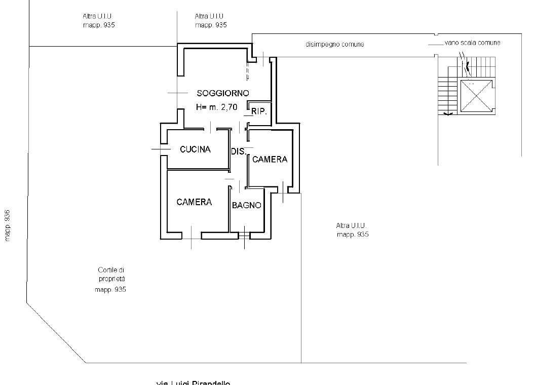
Appartamento della superficie commerciale di circa 94,12 mq, posto al piano terra e disposto su un unico livello.
L'unità è composta da soggiorno, cucina, disimpegno, due camere da letto, bagno e ripostiglio.
Completa la proprietà un cortile di proprietà esclusiva, oltre a cantina al piano interrato e box auto doppio di circa 33 mq, anch'esso posto al piano interrato.
Soluzione ideale per chi desidera spazi esterni privati e la comodità di un'abitazione senza barriere architettoniche. La presenza del cortile esclusivo e del box doppio rende l'immobile particolarmente adatto a famiglie, coppie o a chi necessita di ampi spazi accessori.
⚠️ MUTUO 100% – DELIBERA PREVENTIVA SCRITTA
SERVIZIO COMPLETO “CHIAVI IN MANO”
Pensiamo a TUTTO NOI:
✔ Individuazione opportunità immobiliari
✔ Analisi documentale e legale completa
✔ Sopralluogo tecnico e stima reale dei costi
✔ Prospetto economico chiaro e verificabile
✔ Presentazione offerta in asta
✔ Assistenza totale post-aggiudicazione
✔ Consegna chiavi e supporto finale
IMMOBILE ALL'ASTA O PIGNORATO? AGISCI ORA.
❌ Rischi di perdere la casa?
❌ Hai un decreto ingiuntivo o pignoramento in corso?
Possiamo aiutarti SUBITO.
Analizziamo la tua situazione e troviamo una soluzione concreta prima che sia troppo tardi.
VENDI CASA A COMMISSIONE ZERO Eu.
Nessun anticipo – Nessuna sorpresa – Massima trasparenza
OPERIAMO SU TUTTA ITALIA
Immobili in asta su tutto il territorio nazionale
Consulenza specializzata ASTE GIUDIZIARIE
⚖️ Annuncio informativo ai sensi dell'art. 490 c.p.c.
CONTATTACI ORA – CONSULENZA IMMEDIATA
Aste Milano Immobiliare – Luigi Taras
388 5849357
☎ 02 23668389
✉ info@astemilanoimmobiliare.it
www.astemilanoimmobiliare.it
Uffici:
Via Teodosio 18 – MM2 Lambrate
Via San Gregorio 6 – MM1 Porta Venezia
Dairago Via Luigi Pirandello 11
Appartamento della superficie commerciale di circa 94,12 mq, posto al piano terra e disposto su un unico livello.
L'unità è composta da soggiorno, cucina, disimpegno, due camere da letto, bagno e ripostiglio.
Completa la proprietà un cortile di proprietà esclusiva, oltre a cantina al piano interrato e box auto doppio di circa 33 mq, anch'esso posto al piano interrato.
Soluzione ideale per chi desidera spazi esterni privati e la comodità di un'abitazione senza barriere architettoniche. La presenza del cortile esclusivo e del box doppio rende l'immobile particolarmente adatto a famiglie, coppie o a chi necessita di ampi spazi accessori.
⚠️ MUTUO 100% – DELIBERA PREVENTIVA SCRITTA
SERVIZIO COMPLETO “CHIAVI IN MANO”
Pensiamo a TUTTO NOI:
✔ Individuazione opportunità immobiliari
✔ Analisi documentale e legale completa
✔ Sopralluogo tecnico e stima reale dei costi
✔ Prospetto economico chiaro e verificabile
✔ Presentazione offerta in asta
✔ Assistenza totale post-aggiudicazione
✔ Consegna chiavi e supporto finale
IMMOBILE ALL'ASTA O PIGNORATO? AGISCI ORA.
❌ Rischi di perdere la casa?
❌ Hai un decreto ingiuntivo o pignoramento in corso?
Possiamo aiutarti SUBITO.
Analizziamo la tua situazione e troviamo una soluzione concreta prima che sia troppo tardi.
VENDI CASA A COMMISSIONE ZERO Eu.
Nessun anticipo – Nessuna sorpresa – Massima trasparenza
OPERIAMO SU TUTTA ITALIA
Immobili in asta su tutto il territorio nazionale
Consulenza specializzata ASTE GIUDIZIARIE
⚖️ Annuncio informativo ai sensi dell'art. 490 c.p.c.
CONTATTACI ORA – CONSULENZA IMMEDIATA
Aste Milano Immobiliare – Luigi Taras
388 5849357
☎ 02 23668389
✉ info@astemilanoimmobiliare.it
www.astemilanoimmobiliare.it
Uffici:
Via Teodosio 18 – MM2 Lambrate
Via San Gregorio 6 – MM1 Porta Venezia








