Rif: V007171
GORGONZOLA
MILANO
DATA ASTA 05/03/2026 ASINCRONA
Gorgonzola Via Giuseppe Verdi, 5
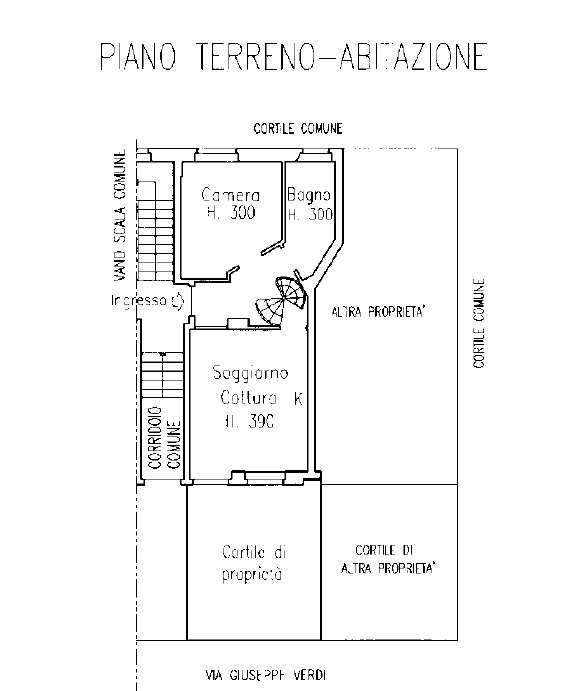
Unità immobiliare ad uso abitativo disposta ai piani terra e seminterrato (T/S1), composta da due locali oltre servizi.
L'immobile è dotato di locale deposito e di cortile pertinenziale, elementi che ne aumentano la funzionalità e l'utilizzabilità degli spazi.
Soluzione ideale per chi cerca un'abitazione con spazi esterni privati e locali accessori, adatta sia all'uso residenziale sia a una gestione flessibile degli ambienti. La presenza del cortile pertinenziale rende l'unità interessante anche per esigenze di indipendenza e personalizzazione.
⚠️ MUTUO 100% – DELIBERA PREVENTIVA SCRITTA
SERVIZIO COMPLETO “CHIAVI IN MANO”
Pensiamo a TUTTO NOI:
✔ Individuazione opportunità immobiliari
✔ Analisi documentale e legale completa
✔ Sopralluogo tecnico e stima reale dei costi
✔ Prospetto economico chiaro e verificabile
✔ Presentazione offerta in asta
✔ Assistenza totale post-aggiudicazione
✔ Consegna chiavi e supporto finale
IMMOBILE ALL'ASTA O PIGNORATO? AGISCI ORA.
❌ Rischi di perdere la casa?
❌ Hai un decreto ingiuntivo o pignoramento in corso?
Possiamo aiutarti SUBITO.
Analizziamo la tua situazione e troviamo una soluzione concreta prima che sia troppo tardi.
VENDI CASA A COMMISSIONE ZERO Eu.
Nessun anticipo – Nessuna sorpresa – Massima trasparenza
OPERIAMO SU TUTTA ITALIA
Immobili in asta su tutto il territorio nazionale
Consulenza specializzata ASTE GIUDIZIARIE
⚖️ Annuncio informativo ai sensi dell'art. 490 c.p.c.
CONTATTACI ORA – CONSULENZA IMMEDIATA
Aste Milano Immobiliare – Luigi Taras
388 5849357
☎ 02 23668389
✉ info@astemilanoimmobiliare.it
www.astemilanoimmobiliare.it
Uffici:
Via Teodosio 18 – MM2 Lambrate
Via San Gregorio 6 – MM1 Porta Venezia
Gorgonzola Via Giuseppe Verdi, 5
Unità immobiliare ad uso abitativo disposta ai piani terra e seminterrato (T/S1), composta da due locali oltre servizi.
L'immobile è dotato di locale deposito e di cortile pertinenziale, elementi che ne aumentano la funzionalità e l'utilizzabilità degli spazi.
Soluzione ideale per chi cerca un'abitazione con spazi esterni privati e locali accessori, adatta sia all'uso residenziale sia a una gestione flessibile degli ambienti. La presenza del cortile pertinenziale rende l'unità interessante anche per esigenze di indipendenza e personalizzazione.
⚠️ MUTUO 100% – DELIBERA PREVENTIVA SCRITTA
SERVIZIO COMPLETO “CHIAVI IN MANO”
Pensiamo a TUTTO NOI:
✔ Individuazione opportunità immobiliari
✔ Analisi documentale e legale completa
✔ Sopralluogo tecnico e stima reale dei costi
✔ Prospetto economico chiaro e verificabile
✔ Presentazione offerta in asta
✔ Assistenza totale post-aggiudicazione
✔ Consegna chiavi e supporto finale
IMMOBILE ALL'ASTA O PIGNORATO? AGISCI ORA.
❌ Rischi di perdere la casa?
❌ Hai un decreto ingiuntivo o pignoramento in corso?
Possiamo aiutarti SUBITO.
Analizziamo la tua situazione e troviamo una soluzione concreta prima che sia troppo tardi.
VENDI CASA A COMMISSIONE ZERO Eu.
Nessun anticipo – Nessuna sorpresa – Massima trasparenza
OPERIAMO SU TUTTA ITALIA
Immobili in asta su tutto il territorio nazionale
Consulenza specializzata ASTE GIUDIZIARIE
⚖️ Annuncio informativo ai sensi dell'art. 490 c.p.c.
CONTATTACI ORA – CONSULENZA IMMEDIATA
Aste Milano Immobiliare – Luigi Taras
388 5849357
☎ 02 23668389
✉ info@astemilanoimmobiliare.it
www.astemilanoimmobiliare.it
Uffici:
Via Teodosio 18 – MM2 Lambrate
Via San Gregorio 6 – MM1 Porta Venezia








