Rif: V007156
PAVIA
PAVIA - zona San Giovannino - Pompieri
DATA ASTA 26/03/2026 ASINCRONA
PAVIA Via Ciapessoni 11
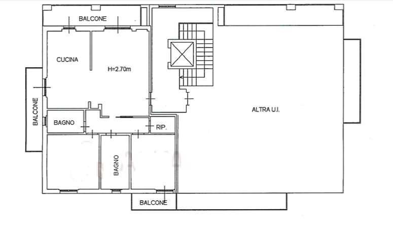
A) Appartamento ad uso abitativo, posto al piano secondo di palazzina di tre piani fuori terra oltre piano interrato, servita da ascensore fino al piano secondo, inserita nel complesso denominato “Condominio Diamante”.
L'unità è composta da soggiorno/pranzo, cucina abitabile, disimpegno, ripostiglio, doppi servizi, due camere da letto e tre balconi.
Sono inoltre annessi un locale sottotetto soprastante, non utilizzabile e non direttamente collegato, nonché vano cantina e box auto posti al piano seminterrato del medesimo complesso.
B) Vano autorimessa, posto al piano terra del “Condominio Fellea”, situato di fronte al fabbricato di cui al punto A).
Soluzione ideale per chi ricerca un'abitazione completa e ben strutturata, con ambienti ampi, cucina abitabile, doppi servizi e spazi esterni rappresentati dai tre balconi. La presenza di cantina, box auto e di una ulteriore autorimessa separata costituisce un elemento di forte valore aggiunto in termini di comodità e appetibilità, rendendo l'insieme particolarmente adatto a nuclei familiari o a chi desidera una dotazione accessoria superiore alla media.
⚠️ MUTUO 100% – DELIBERA PREVENTIVA SCRITTA
SERVIZIO COMPLETO “CHIAVI IN MANO”
Pensiamo a TUTTO NOI:
✔ Individuazione opportunità immobiliari
✔ Analisi documentale e legale completa
✔ Sopralluogo tecnico e stima reale dei costi
✔ Prospetto economico chiaro e verificabile
✔ Presentazione offerta in asta
✔ Assistenza totale post-aggiudicazione
✔ Consegna chiavi e supporto finale
IMMOBILE ALL'ASTA O PIGNORATO? AGISCI ORA.
❌ Rischi di perdere la casa?
❌ Hai un decreto ingiuntivo o pignoramento in corso?
Possiamo aiutarti SUBITO.
Analizziamo la tua situazione e troviamo una soluzione concreta prima che sia troppo tardi.
VENDI CASA A COMMISSIONE ZERO Eu.
Nessun anticipo – Nessuna sorpresa – Massima trasparenza
OPERIAMO SU TUTTA ITALIA
Immobili in asta su tutto il territorio nazionale
Consulenza specializzata ASTE GIUDIZIARIE
⚖️ Annuncio informativo ai sensi dell'art. 490 c.p.c.
CONTATTACI ORA – CONSULENZA IMMEDIATA
Aste Milano Immobiliare – Luigi Taras
388 5849357
☎ 02 23668389
✉ info@astemilanoimmobiliare.it
www.astemilanoimmobiliare.it
Uffici:
Via Teodosio 18 – MM2 Lambrate
Via San Gregorio 6 – MM1 Porta Venezia
Via Roma Rozzano
PAVIA Via Ciapessoni 11
A) Appartamento ad uso abitativo, posto al piano secondo di palazzina di tre piani fuori terra oltre piano interrato, servita da ascensore fino al piano secondo, inserita nel complesso denominato “Condominio Diamante”.
L'unità è composta da soggiorno/pranzo, cucina abitabile, disimpegno, ripostiglio, doppi servizi, due camere da letto e tre balconi.
Sono inoltre annessi un locale sottotetto soprastante, non utilizzabile e non direttamente collegato, nonché vano cantina e box auto posti al piano seminterrato del medesimo complesso.
B) Vano autorimessa, posto al piano terra del “Condominio Fellea”, situato di fronte al fabbricato di cui al punto A).
Soluzione ideale per chi ricerca un'abitazione completa e ben strutturata, con ambienti ampi, cucina abitabile, doppi servizi e spazi esterni rappresentati dai tre balconi. La presenza di cantina, box auto e di una ulteriore autorimessa separata costituisce un elemento di forte valore aggiunto in termini di comodità e appetibilità, rendendo l'insieme particolarmente adatto a nuclei familiari o a chi desidera una dotazione accessoria superiore alla media.
⚠️ MUTUO 100% – DELIBERA PREVENTIVA SCRITTA
SERVIZIO COMPLETO “CHIAVI IN MANO”
Pensiamo a TUTTO NOI:
✔ Individuazione opportunità immobiliari
✔ Analisi documentale e legale completa
✔ Sopralluogo tecnico e stima reale dei costi
✔ Prospetto economico chiaro e verificabile
✔ Presentazione offerta in asta
✔ Assistenza totale post-aggiudicazione
✔ Consegna chiavi e supporto finale
IMMOBILE ALL'ASTA O PIGNORATO? AGISCI ORA.
❌ Rischi di perdere la casa?
❌ Hai un decreto ingiuntivo o pignoramento in corso?
Possiamo aiutarti SUBITO.
Analizziamo la tua situazione e troviamo una soluzione concreta prima che sia troppo tardi.
VENDI CASA A COMMISSIONE ZERO Eu.
Nessun anticipo – Nessuna sorpresa – Massima trasparenza
OPERIAMO SU TUTTA ITALIA
Immobili in asta su tutto il territorio nazionale
Consulenza specializzata ASTE GIUDIZIARIE
⚖️ Annuncio informativo ai sensi dell'art. 490 c.p.c.
CONTATTACI ORA – CONSULENZA IMMEDIATA
Aste Milano Immobiliare – Luigi Taras
388 5849357
☎ 02 23668389
✉ info@astemilanoimmobiliare.it
www.astemilanoimmobiliare.it
Uffici:
Via Teodosio 18 – MM2 Lambrate
Via San Gregorio 6 – MM1 Porta Venezia
Via Roma Rozzano








