Rif: V007147
POZZO D'ADDA
MILANO
DATA ASTA 24/02/2026 ANALOGICA
Pozzo d'Adda (MI), via Cascina Cavallasco s.n.c.
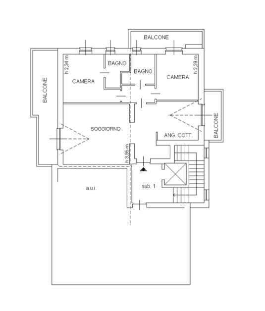
Appartamento posto al piano secondo, composto da quattro locali con angolo cottura oltre servizi.
Completa la proprietà un box pertinenziale ad uso autorimessa.
Soluzione ideale per nuclei familiari o per chi necessita di più ambienti distinti, grazie al taglio a quattro locali che consente una buona flessibilità distributiva. La presenza del box di pertinenza rappresenta un valore aggiunto rilevante in termini di comodità e appetibilità sul mercato, rendendo l'immobile interessante anche in ottica investimento.
⚠️ MUTUO 100% – DELIBERA PREVENTIVA SCRITTA
SERVIZIO COMPLETO “CHIAVI IN MANO”
Pensiamo a TUTTO NOI:
✔ Individuazione opportunità immobiliari
✔ Analisi documentale e legale completa
✔ Sopralluogo tecnico e stima reale dei costi
✔ Prospetto economico chiaro e verificabile
✔ Presentazione offerta in asta
✔ Assistenza totale post-aggiudicazione
✔ Consegna chiavi e supporto finale
IMMOBILE ALL'ASTA O PIGNORATO? AGISCI ORA.
❌ Rischi di perdere la casa?
❌ Hai un decreto ingiuntivo o pignoramento in corso?
Possiamo aiutarti SUBITO.
Analizziamo la tua situazione e troviamo una soluzione concreta prima che sia troppo tardi.
VENDI CASA A COMMISSIONE ZERO Eu.
Nessun anticipo – Nessuna sorpresa – Massima trasparenza
OPERIAMO SU TUTTA ITALIA
Immobili in asta su tutto il territorio nazionale
Consulenza specializzata ASTE GIUDIZIARIE
⚖️ Annuncio informativo ai sensi dell'art. 490 c.p.c.
CONTATTACI ORA – CONSULENZA IMMEDIATA
Aste Milano Immobiliare – Luigi Taras
388 5849357
☎ 02 23668389
✉ info@astemilanoimmobiliare.it
www.astemilanoimmobiliare.it
Uffici:
Via Teodosio 18 – MM2 Lambrate
Via San Gregorio 6 – MM1 Porta Venezia
Pozzo d'Adda (MI), via Cascina Cavallasco s.n.c.
Appartamento posto al piano secondo, composto da quattro locali con angolo cottura oltre servizi.
Completa la proprietà un box pertinenziale ad uso autorimessa.
Soluzione ideale per nuclei familiari o per chi necessita di più ambienti distinti, grazie al taglio a quattro locali che consente una buona flessibilità distributiva. La presenza del box di pertinenza rappresenta un valore aggiunto rilevante in termini di comodità e appetibilità sul mercato, rendendo l'immobile interessante anche in ottica investimento.
⚠️ MUTUO 100% – DELIBERA PREVENTIVA SCRITTA
SERVIZIO COMPLETO “CHIAVI IN MANO”
Pensiamo a TUTTO NOI:
✔ Individuazione opportunità immobiliari
✔ Analisi documentale e legale completa
✔ Sopralluogo tecnico e stima reale dei costi
✔ Prospetto economico chiaro e verificabile
✔ Presentazione offerta in asta
✔ Assistenza totale post-aggiudicazione
✔ Consegna chiavi e supporto finale
IMMOBILE ALL'ASTA O PIGNORATO? AGISCI ORA.
❌ Rischi di perdere la casa?
❌ Hai un decreto ingiuntivo o pignoramento in corso?
Possiamo aiutarti SUBITO.
Analizziamo la tua situazione e troviamo una soluzione concreta prima che sia troppo tardi.
VENDI CASA A COMMISSIONE ZERO Eu.
Nessun anticipo – Nessuna sorpresa – Massima trasparenza
OPERIAMO SU TUTTA ITALIA
Immobili in asta su tutto il territorio nazionale
Consulenza specializzata ASTE GIUDIZIARIE
⚖️ Annuncio informativo ai sensi dell'art. 490 c.p.c.
CONTATTACI ORA – CONSULENZA IMMEDIATA
Aste Milano Immobiliare – Luigi Taras
388 5849357
☎ 02 23668389
✉ info@astemilanoimmobiliare.it
www.astemilanoimmobiliare.it
Uffici:
Via Teodosio 18 – MM2 Lambrate
Via San Gregorio 6 – MM1 Porta Venezia








