Rif: V007129
LOCATE DI TRIULZI
MILANO
DATA ASTA 27/02/2026 SINCRONA
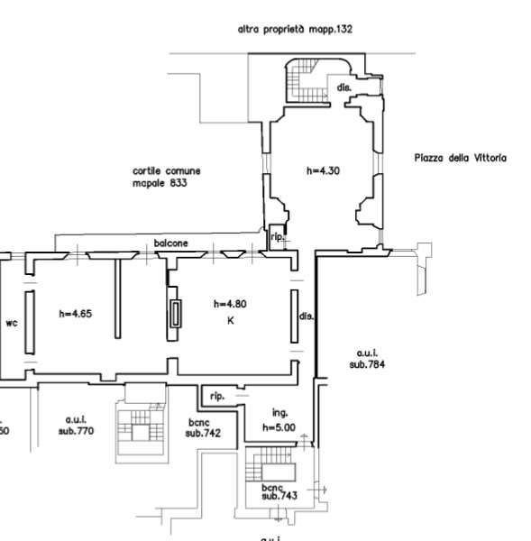
Locate di Triulzi (MI) Piazza della Vittoria n. 7
LOTO 1)L'immobile è collocato al piano terra di un fabbricato ed è composto, come da scheda catastale, da: cucina, bagno e soggiorno/camera da letto.
LOTTO 2)Appartamento piano primo di un fabbricato storico di pregio con prospetto principale sulla piazza centrale di Locate di Triulzi. È servito da doppio accesso (uno da vano scale condominiale e uno direttamente da quota strada con scala interna privata) ed è composto, come da scheda catastale, da: - - Al piano terra: atrio di ingresso e vano scala a pianta semi-ellittica (scala non più presente) con sbarco al piano primo; Al piano primo: ingresso (da vano scale condominiale), ripostiglio, disimpegno, soggiorno, secondo ripostiglio, cucina, camera da letto, bagno e balcone. 260 mq. 258.750,00 OFFERTA MINIMA
MUTUO 100% CON DELIBERA PREVENTIVA SCRITTA
Sei proprietario di un immobile che è stato messo all'asta o decreto ingiuntivo? CONTATTACI per risolvere la situazione.
Vuoi vendere il tuo immobile commissione ZERO EURO
-Individuazione immobili
-Analisi studio documentale
-Sopralluogo per stima ristrutturazione
-Predisposizione prospetto economico
-Presentazione offerta
-Assistenza post aggiudicazione consegna chiavi
La finalità del presente annuncio è la promozione dell'attività di Consulenza ed Assistenza per acquisto immobili tramite aste giudiziari Immobiliari.
Operiamo su tutti gli immobili presenti in asta su tutto il territorio nazionale
Il presente annuncio non sostituisce né integra le informazioni pubblicate ex art. 490 c.p.c.
Per maggiori informazioni contattare:
Aste Milano Immobiliare di Luigi Taras (GOOGLE)
Cell. 3885849357
Tel. 02.23668389
E-Mail: info@astemilanoimmobiliare.it
www.astemilanoimmobiliare.it
Ufficio: Via Teodosio 18 MM 2 LAMBRATE
Ufficio: Via San Gregorio 6 MM 1 PORTA VENEZIA
Locate di Triulzi (MI) Piazza della Vittoria n. 7
LOTO 1)L'immobile è collocato al piano terra di un fabbricato ed è composto, come da scheda catastale, da: cucina, bagno e soggiorno/camera da letto.
LOTTO 2)Appartamento piano primo di un fabbricato storico di pregio con prospetto principale sulla piazza centrale di Locate di Triulzi. È servito da doppio accesso (uno da vano scale condominiale e uno direttamente da quota strada con scala interna privata) ed è composto, come da scheda catastale, da: - - Al piano terra: atrio di ingresso e vano scala a pianta semi-ellittica (scala non più presente) con sbarco al piano primo; Al piano primo: ingresso (da vano scale condominiale), ripostiglio, disimpegno, soggiorno, secondo ripostiglio, cucina, camera da letto, bagno e balcone. 260 mq. 258.750,00 OFFERTA MINIMA
MUTUO 100% CON DELIBERA PREVENTIVA SCRITTA
Sei proprietario di un immobile che è stato messo all'asta o decreto ingiuntivo? CONTATTACI per risolvere la situazione.
Vuoi vendere il tuo immobile commissione ZERO EURO
-Individuazione immobili
-Analisi studio documentale
-Sopralluogo per stima ristrutturazione
-Predisposizione prospetto economico
-Presentazione offerta
-Assistenza post aggiudicazione consegna chiavi
La finalità del presente annuncio è la promozione dell'attività di Consulenza ed Assistenza per acquisto immobili tramite aste giudiziari Immobiliari.
Operiamo su tutti gli immobili presenti in asta su tutto il territorio nazionale
Il presente annuncio non sostituisce né integra le informazioni pubblicate ex art. 490 c.p.c.
Per maggiori informazioni contattare:
Aste Milano Immobiliare di Luigi Taras (GOOGLE)
Cell. 3885849357
Tel. 02.23668389
E-Mail: info@astemilanoimmobiliare.it
www.astemilanoimmobiliare.it
Ufficio: Via Teodosio 18 MM 2 LAMBRATE
Ufficio: Via San Gregorio 6 MM 1 PORTA VENEZIA








