Rif: V007123
MILANO
MILANO - zona Martini - Insubria
DATA ASTA 10/02/2025 ASINCRONA
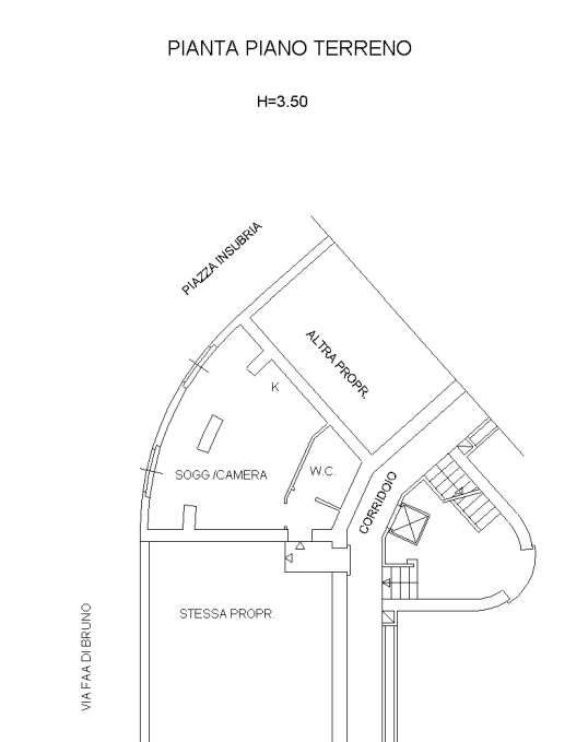
Milano – Piazza Insubria n° 3
ABITAZIONE al piano T composta da ampio locale, angolo cottura, servizio igienico e disimpegno.
MUTUO 100% CON DELIBERA PREVENTIVA SCRITTA
Sei proprietario di un immobile che è stato messo all'asta o decreto ingiuntivo? CONTATTACI per risolvere la situazione.
Vuoi vendere il tuo immobile commissione ZERO EURO
-Individuazione immobili
-Analisi studio documentale
-Sopralluogo per stima ristrutturazione
-Predisposizione prospetto economico
-Presentazione offerta
-Assistenza post aggiudicazione consegna chiavi
La finalità del presente annuncio è la promozione dell'attività di Consulenza ed Assistenza per acquisto immobili tramite aste giudiziari Immobiliari.
Operiamo su tutti gli immobili presenti in asta su tutto il territorio nazionale
Il presente annuncio non sostituisce né integra le informazioni pubblicate ex art. 490 c.p.c.
Per maggiori informazioni contattare:
Aste Milano Immobiliare di Luigi Taras (GOOGLE)
Cell. 3885849357
Tel. 02.23668389
E-Mail: info@astemilanoimmobiliare.it
www.astemilanoimmobiliare.it
Ufficio: Via Teodosio 18 MM 2 LAMBRATE
Ufficio: Via San Gregorio 6 MM 1 PORTA VENEZIA
Milano – Piazza Insubria n° 3
ABITAZIONE al piano T composta da ampio locale, angolo cottura, servizio igienico e disimpegno.
MUTUO 100% CON DELIBERA PREVENTIVA SCRITTA
Sei proprietario di un immobile che è stato messo all'asta o decreto ingiuntivo? CONTATTACI per risolvere la situazione.
Vuoi vendere il tuo immobile commissione ZERO EURO
-Individuazione immobili
-Analisi studio documentale
-Sopralluogo per stima ristrutturazione
-Predisposizione prospetto economico
-Presentazione offerta
-Assistenza post aggiudicazione consegna chiavi
La finalità del presente annuncio è la promozione dell'attività di Consulenza ed Assistenza per acquisto immobili tramite aste giudiziari Immobiliari.
Operiamo su tutti gli immobili presenti in asta su tutto il territorio nazionale
Il presente annuncio non sostituisce né integra le informazioni pubblicate ex art. 490 c.p.c.
Per maggiori informazioni contattare:
Aste Milano Immobiliare di Luigi Taras (GOOGLE)
Cell. 3885849357
Tel. 02.23668389
E-Mail: info@astemilanoimmobiliare.it
www.astemilanoimmobiliare.it
Ufficio: Via Teodosio 18 MM 2 LAMBRATE
Ufficio: Via San Gregorio 6 MM 1 PORTA VENEZIA








