Rif: V007081
BAREGGIO
MILANO
DATA ASTA 12/02/2026 ASINCRONA
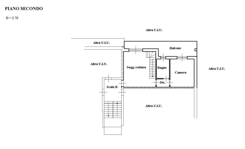
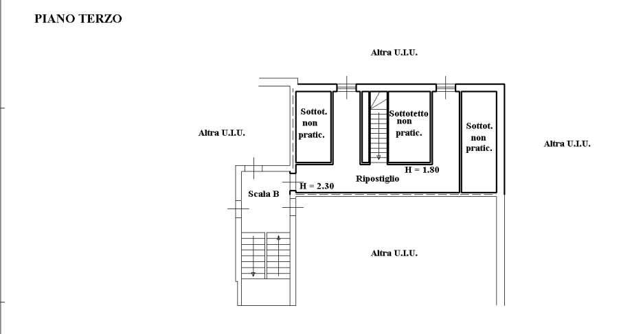
Bareggio Via Isonzo, 30
appartamento ad uso abitazione posto al piano 2-3 composto da ingresso/soggiorno, bagno, disimpegno, cucina, scala di collegamento al piano terzo con destinazione d'uso soffitta, ma così distribuito, vano letto, bagno ed altro vano letto, oltre box al piano T.
Sei proprietario di un immobile che è stato messo all'asta o decreto ingiuntivo? CONTATTACI per risolvere la situazione.
Vuoi vendere il tuo immobile commissione ZERO EURO
MUTUO 100% CON DELIBERA PREVENTIVA SCRITTA
La finalità del presente annuncio è la promozione dell'attività di Consulenza ed Assistenza per acquisto immobili tramite aste giudiziari Immobiliari.
Operiamo su tutti gli immobili presenti in asta su tutto il territorio nazionale
Possiamo offrire vari servizi di cui:
-ACQUISTO DEL CREDITO NPL
-Gestione e trattazione accordi transattivi per la definizione del debito
-Visure banche dati pubbliche e private
-RISTRUTTURAZIONI- APE- CILA- DOCFA
-ATTESTAZIONE CLASSE ENERGETICA
Il presente annuncio non sostituisce né integra le informazioni pubblicate ex art. 490 c.p.c.
Per maggiori informazioni contattare:
Aste Milano Immobiliare di Luigi Taras (GOOGLE)
Cell. 3885849357
Tel. 02.23668389
E-Mail: info@astemilanoimmobiliare.it
www.astemilanoimmobiliare.it
Ufficio: Via Teodosio 18 MM 2 LAMBRATE
Ufficio: Via San Gregorio 6 MM 1 PORTA VENEZIA
Bareggio Via Isonzo, 30
appartamento ad uso abitazione posto al piano 2-3 composto da ingresso/soggiorno, bagno, disimpegno, cucina, scala di collegamento al piano terzo con destinazione d'uso soffitta, ma così distribuito, vano letto, bagno ed altro vano letto, oltre box al piano T.
Sei proprietario di un immobile che è stato messo all'asta o decreto ingiuntivo? CONTATTACI per risolvere la situazione.
Vuoi vendere il tuo immobile commissione ZERO EURO
MUTUO 100% CON DELIBERA PREVENTIVA SCRITTA
La finalità del presente annuncio è la promozione dell'attività di Consulenza ed Assistenza per acquisto immobili tramite aste giudiziari Immobiliari.
Operiamo su tutti gli immobili presenti in asta su tutto il territorio nazionale
Possiamo offrire vari servizi di cui:
-ACQUISTO DEL CREDITO NPL
-Gestione e trattazione accordi transattivi per la definizione del debito
-Visure banche dati pubbliche e private
-RISTRUTTURAZIONI- APE- CILA- DOCFA
-ATTESTAZIONE CLASSE ENERGETICA
Il presente annuncio non sostituisce né integra le informazioni pubblicate ex art. 490 c.p.c.
Per maggiori informazioni contattare:
Aste Milano Immobiliare di Luigi Taras (GOOGLE)
Cell. 3885849357
Tel. 02.23668389
E-Mail: info@astemilanoimmobiliare.it
www.astemilanoimmobiliare.it
Ufficio: Via Teodosio 18 MM 2 LAMBRATE
Ufficio: Via San Gregorio 6 MM 1 PORTA VENEZIA








