Rif: V007074
NERVIANO
MILANO
DATA ASTA 29/01/2026 ASINCRONA
Nerviano via Luigi Cadorna 21/A
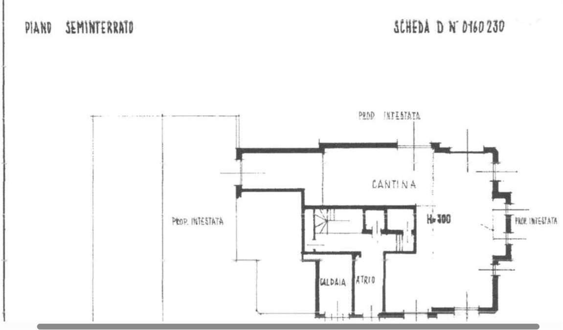
APPARTAMENTO ad uso abitazione posto al piano secondo composto da tre locali oltre servizio, ripostiglio e balcone coperto semi abitabile, con annessi laboratorio/cantina e box ad uso autorimessa al piano seminterrato.
Sei proprietario di un immobile che è stato messo all'asta o decreto ingiuntivo? CONTATTACI per risolvere la situazione.
Vuoi vendere il tuo immobile commissione ZERO EURO
MUTUO 100% CON DELIBERA PREVENTIVA SCRITTA
La finalità del presente annuncio è la promozione dell'attività di Consulenza ed Assistenza per acquisto immobili tramite aste giudiziari Immobiliari.
Operiamo su tutti gli immobili presenti in asta su tutto il territorio nazionale
Possiamo offrire vari servizi di cui:
-ACQUISTO DEL CREDITO NPL
-Gestione e trattazione accordi transattivi per la definizione del debito
-Visure banche dati pubbliche e private
-RISTRUTTURAZIONI- APE- CILA- DOCFA
-ATTESTAZIONE CLASSE ENERGETICA
Il presente annuncio non sostituisce né integra le informazioni pubblicate ex art. 490 c.p.c.
Per maggiori informazioni contattare:
Aste Milano Immobiliare di Luigi Taras (GOOGLE)
Cell. 3885849357
Tel. 02.23668389
E-Mail: info@astemilanoimmobiliare.it
www.astemilanoimmobiliare.it
Ufficio: Via Teodosio 18 MM 2 LAMBRATE
Ufficio: Via San Gregorio 6 MM 1 PORTA VENEZIA
Nerviano via Luigi Cadorna 21/A
APPARTAMENTO ad uso abitazione posto al piano secondo composto da tre locali oltre servizio, ripostiglio e balcone coperto semi abitabile, con annessi laboratorio/cantina e box ad uso autorimessa al piano seminterrato.
Sei proprietario di un immobile che è stato messo all'asta o decreto ingiuntivo? CONTATTACI per risolvere la situazione.
Vuoi vendere il tuo immobile commissione ZERO EURO
MUTUO 100% CON DELIBERA PREVENTIVA SCRITTA
La finalità del presente annuncio è la promozione dell'attività di Consulenza ed Assistenza per acquisto immobili tramite aste giudiziari Immobiliari.
Operiamo su tutti gli immobili presenti in asta su tutto il territorio nazionale
Possiamo offrire vari servizi di cui:
-ACQUISTO DEL CREDITO NPL
-Gestione e trattazione accordi transattivi per la definizione del debito
-Visure banche dati pubbliche e private
-RISTRUTTURAZIONI- APE- CILA- DOCFA
-ATTESTAZIONE CLASSE ENERGETICA
Il presente annuncio non sostituisce né integra le informazioni pubblicate ex art. 490 c.p.c.
Per maggiori informazioni contattare:
Aste Milano Immobiliare di Luigi Taras (GOOGLE)
Cell. 3885849357
Tel. 02.23668389
E-Mail: info@astemilanoimmobiliare.it
www.astemilanoimmobiliare.it
Ufficio: Via Teodosio 18 MM 2 LAMBRATE
Ufficio: Via San Gregorio 6 MM 1 PORTA VENEZIA








