Rif: V007044
ASSAGO
MILANO
DATA ASTA 21/01/2026 ASINCRONA
ASSAGO via Rozzano SNC
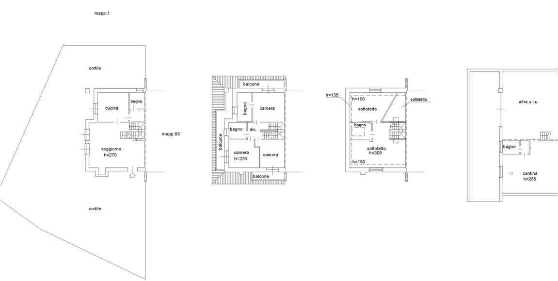
abitazione in villino, con accesso pedonale e carrabile da via Rozzano senza numero civico, sviluppata su quattro livelli (seminterrato, terra o rialzato, primo e secondo sottotetto), composta al piano rialzato da
soggiorno, una cucina abitabile e bagno con antibagno; al primo piano da due camere da letto, un bagno con antibagno e due balconi a livello; al secondo piano (sottotetto senza permanenza di persone2) da un ampio
locale unico aerato e illuminato mediante serramenti a tetto e in facciata e al piano seminterrato da un locale tipo cantina; i piani sono collegati internamente da una scala interna; l'unità è correlata da una area esterna
pertinenziale sui lati Nord Est e Sud. autorimessa pertinenziale
ASSAGO via Rozzano SNC
abitazione in villino, con accesso pedonale e carrabile da via Rozzano senza numero civico, sviluppata su quattro livelli (seminterrato, terra o rialzato, primo e secondo sottotetto), composta al piano rialzato da
soggiorno, una cucina abitabile e bagno con antibagno; al primo piano da due camere da letto, un bagno con antibagno e due balconi a livello; al secondo piano (sottotetto senza permanenza di persone2) da un ampio
locale unico aerato e illuminato mediante serramenti a tetto e in facciata e al piano seminterrato da un locale tipo cantina; i piani sono collegati internamente da una scala interna; l'unità è correlata da una area esterna
pertinenziale sui lati Nord Est e Sud. autorimessa pertinenziale








