Rif: V006972
PANDINO
CREMONA
DATA ASTA 13/01/26 MISTA
Pandino Via Boccaccio 7
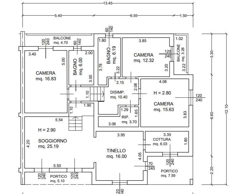
Villa unifamiliare e indipendente, parte di una bifamiliare, con garage e cortile/giardino esclusivi. Costituita al piano seminterrato da cantina, lavanderia, w.c. e autorimessa; al piano terra/rialzato da soggiorno, tinello, cottura, disimpegno, tre camere, due bagni, ripostiglio, due portici e due balconi.
Sei proprietario di un immobile che è stato messo all'asta o decreto ingiuntivo? CONTATTACI per risolvere la situazione.
La finalità del presente annuncio è la promozione dell'attività di Consulenza ed Assistenza per acquisto immobili tramite aste giudiziari Immobiliari.
Operiamo su tutti gli immobili presenti in asta su tutto il territorio nazionale
Possiamo offrire vari servizi di cui:
-ACQUISTO DEL CREDITO NPL
-MUTUO 100% CON DELIBERA PREVENTIVA
-Gestione e trattazione accordi transattivi per la definizione del debito
-Visure banche dati pubbliche e private
-RISTRUTTURAZIONI- APE- CILA- DOCFA
-ATTESTAZIONE CLASSE ENERGETICA
Il presente annuncio non sostituisce né integra le informazioni pubblicate ex art. 490 c.p.c.
Per maggiori informazioni contattare:
Aste Milano Immobiliare di Luigi Taras (GOOGLE)
Cell. 3885849357
Tel. 02.23668389
E-Mail: info@astemilanoimmobiliare.it
www.astemilanoimmobiliare.it
Ufficio: Via Teodosio 18 MM 2 LAMBRATE
Ufficio: Via San Gregorio 6 MM 1 PORTA VENEZIA
Pandino Via Boccaccio 7
Villa unifamiliare e indipendente, parte di una bifamiliare, con garage e cortile/giardino esclusivi. Costituita al piano seminterrato da cantina, lavanderia, w.c. e autorimessa; al piano terra/rialzato da soggiorno, tinello, cottura, disimpegno, tre camere, due bagni, ripostiglio, due portici e due balconi.
Sei proprietario di un immobile che è stato messo all'asta o decreto ingiuntivo? CONTATTACI per risolvere la situazione.
La finalità del presente annuncio è la promozione dell'attività di Consulenza ed Assistenza per acquisto immobili tramite aste giudiziari Immobiliari.
Operiamo su tutti gli immobili presenti in asta su tutto il territorio nazionale
Possiamo offrire vari servizi di cui:
-ACQUISTO DEL CREDITO NPL
-MUTUO 100% CON DELIBERA PREVENTIVA
-Gestione e trattazione accordi transattivi per la definizione del debito
-Visure banche dati pubbliche e private
-RISTRUTTURAZIONI- APE- CILA- DOCFA
-ATTESTAZIONE CLASSE ENERGETICA
Il presente annuncio non sostituisce né integra le informazioni pubblicate ex art. 490 c.p.c.
Per maggiori informazioni contattare:
Aste Milano Immobiliare di Luigi Taras (GOOGLE)
Cell. 3885849357
Tel. 02.23668389
E-Mail: info@astemilanoimmobiliare.it
www.astemilanoimmobiliare.it
Ufficio: Via Teodosio 18 MM 2 LAMBRATE
Ufficio: Via San Gregorio 6 MM 1 PORTA VENEZIA








