Rif: V006931
SAN GIULIANO MILANESE
MILANO
DATA ASTA 07/01/2026 SINCRONA
San Giuliano Milanese Via Cavour, 44
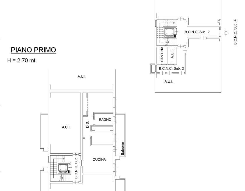
Appartamento posto al primo piano composto da cucina con angolo cottura, disimpegno, due camere, bagno, balcone, locale cantina al piano interrato e box ad uso autorimessa pertinenziale all'appartamento.
Sei proprietario di un immobile che è stato messo all'asta o decreto ingiuntivo? CONTATTACI per risolvere la situazione.
La finalità del presente annuncio è la promozione dell'attività di Consulenza ed Assistenza per acquisto immobili tramite aste giudiziari Immobiliari.
Operiamo su tutti gli immobili presenti in asta su tutto il territorio nazionale
Possiamo offrire vari servizi di cui:
-ACQUISTO DEL CREDITO NPL
-MUTUO 100% CON DELIBERA PREVENTIVA
-Gestione e trattazione accordi transattivi per la definizione del debito
-Visure banche dati pubbliche e private
-RISTRUTTURAZIONI- APE- CILA- DOCFA
-ATTESTAZIONE CLASSE ENERGETICA
Il presente annuncio non sostituisce né integra le informazioni pubblicate ex art. 490 c.p.c.
Per maggiori informazioni contattare:
Aste Milano Immobiliare di Luigi Taras (GOOGLE)
Cell. 3885849357
Tel. 02.23668389
E-Mail: info@astemilanoimmobiliare.it
www.astemilanoimmobiliare.it
Ufficio: Via Teodosio 18 MM 2 LAMBRATE
Ufficio: Via San Gregorio 6 MM 1 PORTA VENEZIA
San Giuliano Milanese Via Cavour, 44
Appartamento posto al primo piano composto da cucina con angolo cottura, disimpegno, due camere, bagno, balcone, locale cantina al piano interrato e box ad uso autorimessa pertinenziale all'appartamento.
Sei proprietario di un immobile che è stato messo all'asta o decreto ingiuntivo? CONTATTACI per risolvere la situazione.
La finalità del presente annuncio è la promozione dell'attività di Consulenza ed Assistenza per acquisto immobili tramite aste giudiziari Immobiliari.
Operiamo su tutti gli immobili presenti in asta su tutto il territorio nazionale
Possiamo offrire vari servizi di cui:
-ACQUISTO DEL CREDITO NPL
-MUTUO 100% CON DELIBERA PREVENTIVA
-Gestione e trattazione accordi transattivi per la definizione del debito
-Visure banche dati pubbliche e private
-RISTRUTTURAZIONI- APE- CILA- DOCFA
-ATTESTAZIONE CLASSE ENERGETICA
Il presente annuncio non sostituisce né integra le informazioni pubblicate ex art. 490 c.p.c.
Per maggiori informazioni contattare:
Aste Milano Immobiliare di Luigi Taras (GOOGLE)
Cell. 3885849357
Tel. 02.23668389
E-Mail: info@astemilanoimmobiliare.it
www.astemilanoimmobiliare.it
Ufficio: Via Teodosio 18 MM 2 LAMBRATE
Ufficio: Via San Gregorio 6 MM 1 PORTA VENEZIA








